一、项目介绍
海南环岛旅游公路项目贯穿海口、文昌、琼海、万宁等沿海12个市县。全线共设置养护工区8处、停车区25处、新能源补给站14处、观景台45处、路侧停车带66处,云控中心1处。全线有机串联沿途约9类84段景观区域、22个滨海岬角、25座灯塔、68个特色海湾、26个滨海潟湖、16片红树林、31家A级以上景区、21处旅游度假区、261处滨海名胜古迹。
二、总体配套设施规划
海南环岛旅游公路于2023年12月18日正式全线通车,为给广大游客提供高品质的海南环岛旅行生活体验和专业出行配套服务,满足车主美好出行需求,我司拟在符合条件的停车区、观景台、养护工区底层房屋等引进相关商业配套项目,包括但不限于充电桩、租车服务、旅游巴士、观光车、房车营地、便利店、咖啡馆、轻餐、零售店、集市等,现面向社会公开征集意向投资客户,欢迎有投资意向的商家前来商洽。
联系电话:占先生,13588232314。
三、部分停车区、观景台平面布局
1.鱼骨桥北停车区
鱼骨桥北停车区位于儋州市峨蔓镇,占地面积5467㎡,共设置22个停车位,一个砖混厕所;规划建设充电桩车位、便利店、房车营地、咖啡厅等配套服务业态。
鱼骨桥北停车区平面图
鱼骨桥北停车区航拍图
2.航天椰梦停车区
航天椰梦停车区位于文昌市东郊镇,占地面积6667㎡,共设置25个停车位,一个智慧厕所;规划建设充电桩车位、便利店、房车营地、咖啡厅等配套服务业态。
航天椰梦停车区平面图
航天椰梦停车区航拍图
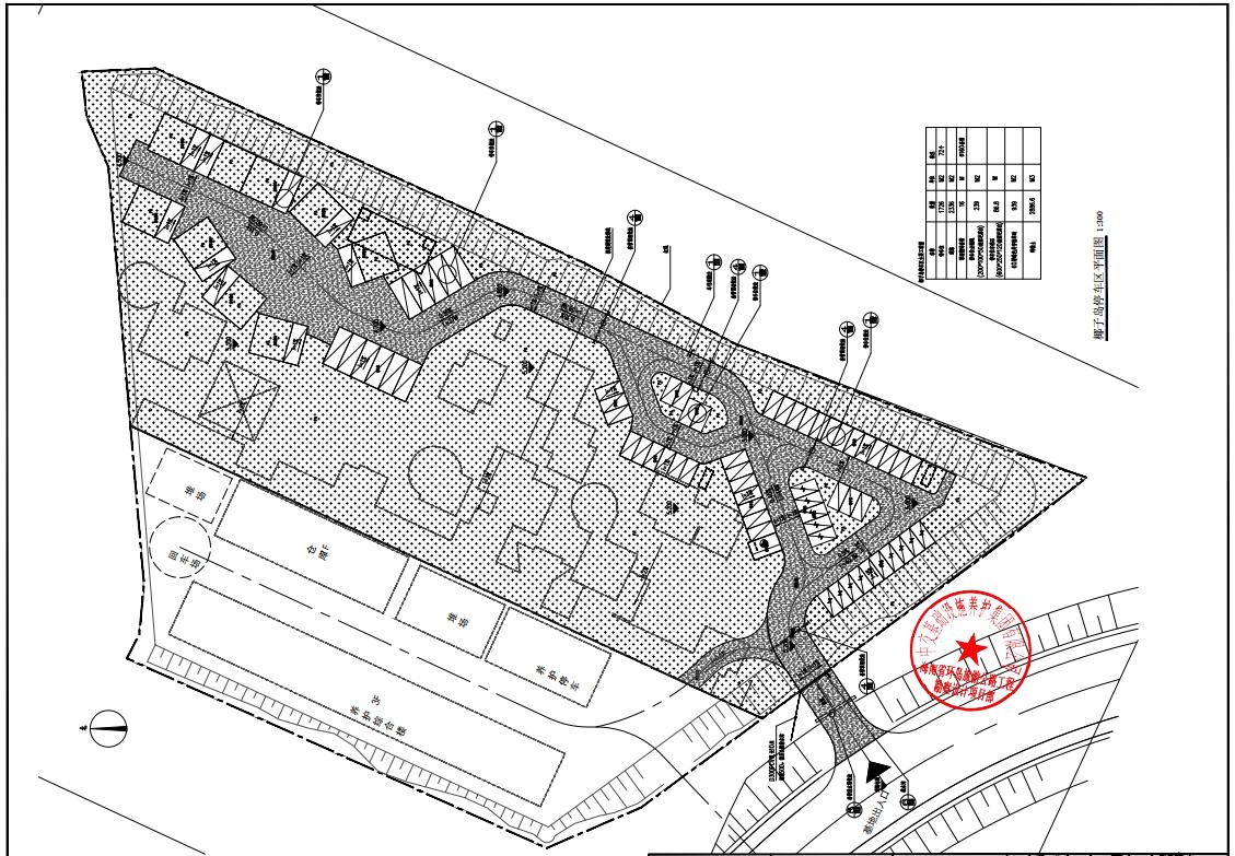
3.椰子岛停车区
椰子岛停车区位于陵水黎族自治县椰林镇,占地面积11595㎡,共设置72个停车位,一个智慧厕所;规划建设充电桩车位、便利店、房车营地、咖啡厅等配套服务业态。
椰子岛停车区平面图
椰子岛停车区航拍图
4.观海桥北观景台
观海桥北观景台位于昌江黎族自治县海尾镇,占地面积5355㎡,共设置13个停车位,一个智慧厕所;规划建设便利店、房车营地等配套服务业态。
.jpg)
观海桥北观景台平面图
观海桥北观景台航拍图





海南省交通投资集团有限公司版权所有
公司地址:海南省海口市国兴大道5号海南大厦农信楼6层 邮编:570203